Industrial Site Improvements Civil Engineering Services in Medley, Miami-Dade County – RSP Engineers

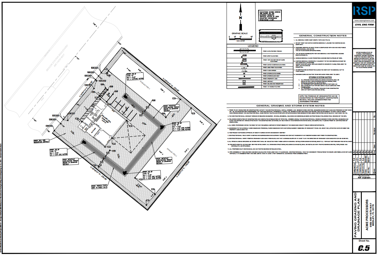
Site Investigation and Drainage Assessment

Our team conducted a comprehensive site investigation to evaluate existing conditions and assess drainage patterns. This assessment informed the design process, ensuring effective stormwater management and compliance with Miami-Dade County regulations.

Stormwater Modeling and Flood Analysis

Utilizing advanced modeling techniques, we analyzed stormwater runoff and flood risks. This analysis guided the development of a robust stormwater management plan, mitigating potential flooding issues and aligning with FEMA guidelines.

Finish Floor Elevation Determination

Determining appropriate finish floor elevations was critical for flood resilience. Our calculations ensured that the building's elevation met or exceeded local requirements, enhancing the safety and longevity of the structure.

Paving, Grading, and Drainage Plans

We developed detailed paving, grading, and drainage plans to facilitate proper site development. These plans addressed surface runoff, erosion control, and integrated seamlessly with existing infrastructure.

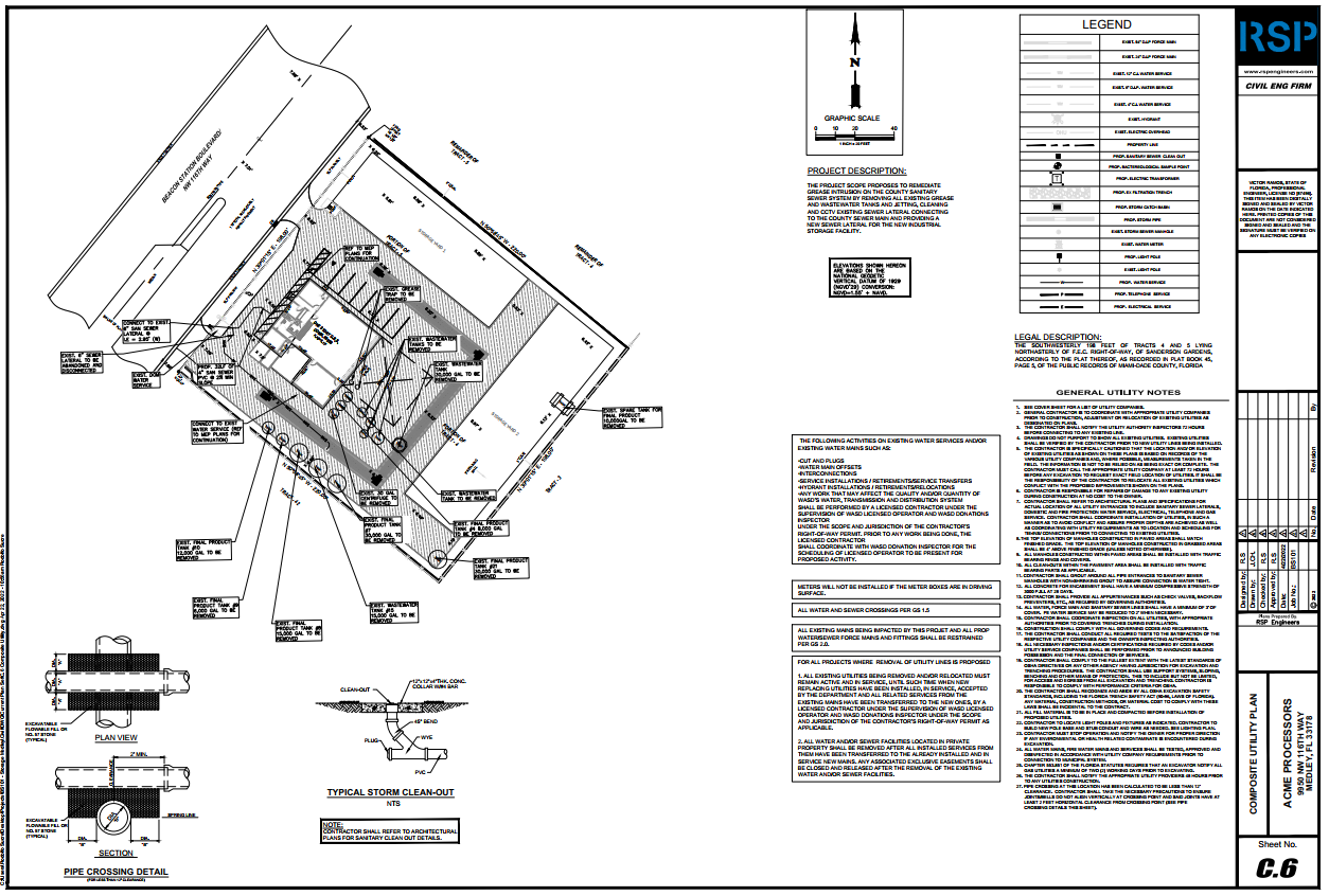
Utility Coordination and Permitting

RSP Engineers coordinated with local utility providers and permitting agencies, including Miami-Dade County DERM and the Town of Medley, to ensure all aspects of the project met regulatory standards and timelines.

https://www.miamidade.gov/permits/site-map.asp#0

Contact Us
Services
 
Previous
Previous

Residential Development Civil Engineering Services in Miami - RSP Engineers

Next
Next

Mixed-Use Development Civil Engineering Services in Sarasota County